Глобальные проблемы человечества

Глобальные проблемы человечества

По ходу развития цивилизации перед человечеством неоднократно возникали сложные проблемы, порою и планетарного характера.

Животный мир в системе размещения производительных сил

Животный мир в системе размещения производительных сил

Животный мир – важная сфера размещения производительных сил. Рациональное использование животного мира, забота о его представителях...

Анализ и синтез изменения характеристик ПТК во времени (первый подход к выделению состояний ПТК)

География » Сезонное изменение ландшафтов » Анализ и синтез изменения характеристик ПТК во времени (первый подход к выделению состояний ПТК)

Страница 6

Принципиально иной характер структуры и функционирования фаций наблюдается осенью (14 октября 1973 г., рис. 8). Хотя температура воздуха (14,6°) практически не отличается от температуры предыдущего состояния ПТК, количество суммарной радиации, сократившись почти вдвое, составляет 380 кал., из которых на прямую радиацию приходится 329 кал. Радиационный баланс – 222 кал. Тепловые балансы 31 мая и 14 октября различаются не только количественно, но и качественно. Если 31 мая преобладали затраты тепла на испарение, то 14 октября — затраты на турбулентный теплообмен, которые почти в 6 раз превысили затраты на испарение. Затраты тепла на фотосинтез 14 октября по сравнению с такими же затратами 31 мая сократились в 4 раза

Во влагообороте преобладает физическое испарение, которое в 5 раз превышает транспирацию.

Очень существенны отличия в вертикальной структуре ПТК. Как мощность, так и сложность вертикального профиля ее с каждым днем постепенно уменьшаются. В надземной части преобладает мортмасса ветоши и подстилки, которая с каждым днем увеличивается.

Состояния структуры и функционирования фаций зависят не только от сезона, но и от погоды. Это хорошо видно на рис. 9, на котором изображена графическая модель фации в дождливый день (6 августа 1971 г.). В дождливую погоду основная роль принадлежит влагообороту. 6 августа 1971 г. после продолжительной засухи выпало 26,3 мм осадков (263 т/га). В результате запасы почвенной влаги быстро пополнились. Если 5 августа в почве содержалось 710 т/га, то через двое суток — уже 820 т/га. Рассматриваемое состояние ПТК характеризовалось некоторой активизацией стока и связанным с ним перемещением твердых частиц.

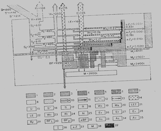
Рис. 6. Модель структуры и функционирования фаций ПСЛ в ясный солнечный день в конце весны (31 мая 1971 г.)

1 — фитомасса и ветошь надземной части (Pi), 2 — фитомасса подземной части (Ps), 3 — зоомасса надземной части, 4—зоомасса почвенной мезофауны (Z), 5 — вещество, вовлекаемое в биогеоцикл, 6—гумус, 7 — почвенная влага, 8 — минеральная часть почвы, 9 — трансформация солнечной энергии, 10 — отдельные элементы биогеоцикла, 11—сток, 12 — подстилка (Мl), 13 — твердый сток, 14 — осадки, испарение и увеличение влаги в почве при инфильтрации, 15 — прямая радиация, 16 — рассеянная радиация, 17 — суммарная радиация, 18 — радиационный баланс, 19—турбулентный теплообмен, 20 — теплообмен с почвой, 21 — затраты тепла на транспирацию, 22 —затраты тепла на физическое испарение. 23 — затраты тепла на фотосинтез, 24 — отраженная радиация, 25 — осадки, 26 — физическое испарение, 27 — транспирация, 28 — суммарное испарение, 29 почвенная влага (ПВ), 30 — ПВ в предыдущий день, 31—ПВ в последующий день, 32 — изменение ПВ, 33—поверхностный сток, 34 — внутрипочвенный сток, 35 — подземный сток, 36 — перехват осадков растительностью, 37—прирост фитомассы, 38 — минеральная часть почвы, 39 — увеличение фитомассы за счет прироста.

Рис. 7. Модель структуры и функционирования фаций ПСЛ в один из осенних дней (14 октября 1973 г.) (См. условные обозначения к рис. 7.)

Страницы: 1 2 3 4 5 6 7 8

Больше о географии:

Климат
Север Чили (до 28° ю. ш.) имеет тропический пустынный климат. Осадков выпадает менее 50 мм в год, местами дождей не бывает по несколько лет подряд. На побережье, омываемом холодным Перуанским течением, значительны относительная влажность, зимне-весенняя облачность, туманы и морось. Средние месячны ...

Пустыня - территория жизни
Какое-то неприятное, даже пожалуй, страшное само слово “пустыня”. Она не оставляет никакой надежды, решительно объявляя – здесь ничего нет и быть не может. Здесь пустота, пустыня. И действительно, если просуммировать даже те краткие сведения о пустыне, которые уже сообщались, картина получится не ...

Использование природных ресурсов и антропогенные преобразования ландшафтов Восточного Приазовья
С начала XIX в. развитие природных процессов все более находится под влиянием человеческой деятельности. После углубления рукава Переволока и Темрюкского гирла прекратился сток р. Кубани в Черное море, но существенно вырос в Ахтанизовские лиманы и через них в Азовское море. В плавнях вначале осваи ...

Главное меню

Copyright © 2025 - All Rights Reserved - www.ritele.ru